1) su una villetta unifamiliare con due proprietari
Oltre ad essere una bifamiliare e anche un condominio minimi quindi soggiace alle regole di questo.

"Leggendo sul web mi risulta sia possibile senza neanche chiedere all’altro proprietario"
il web non conosce la morfologia dell'immobile di cui si tratta.


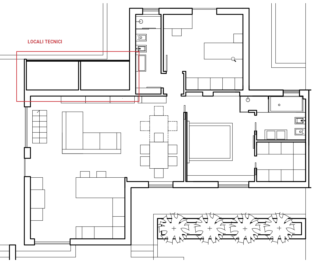
2) vano tecnico: è possibile trasformare un vano tecnico (9 mq con finestra) in camera?
questione squisitamente tecnica da valutare con un tecnico: ing-arch
 
Ultima modifica:
Si @StudioPretto
ma se gliela dici così generi false illusioni

La cubatura non è un'incognita che aumenta o diminuisce a seconda di come faccio muri e finestre

i volumi tecnici degli edifici sono inclusi nel calcolo della volumetria residenziale

Posso decidere di spenderla in parte per la volumetria abitativa e in parte per i volumi tecnici

ALLORA questi locali - previa trasformazione urbanistica - si possono rendere abitabili

Il tipico caso del ripostiglio in casa

soluzione 2.jpg

Posso spendere tutta la volumetria per l'abitativo e mi concedono i volumi tecnici come spazi accessori

Image 14.jpg


In quel caso, di qualunque dimensioni, altezze, finestre siamo. sempre spazi accessori sono
 
Si @StudioPretto
ma se gliela dici così generi false illusioni

La cubatura non è un'incognita che aumenta o diminuisce a seconda di come faccio muri e finestre



Posso decidere di spenderla in parte per la volumetria abitativa e in parte per i volumi tecnici

ALLORA questi locali - previa trasformazione urbanistica - si possono rendere abitabili

Il tipico caso del ripostiglio in casa

Visualizza allegato 19606
Posso spendere tutta la volumetria per l'abitativo e mi concedono i volumi tecnici come spazi accessori

Visualizza allegato 19607

In quel caso, di qualunque dimensioni, ho specificato

Si @StudioPretto
ma se gliela dici così generi false illusioni

La cubatura non è un'incognita che aumenta o diminuisce a seconda di come faccio muri e finestre



Posso decidere di spenderla in parte per la volumetria abitativa e in parte per i volumi tecnici

ALLORA questi locali - previa trasformazione urbanistica - si possono rendere abitabili

Il tipico caso del ripostiglio in casa

Visualizza allegato 19606
Posso spendere tutta la volumetria per l'abitativo e mi concedono i volumi tecnici come spazi accessori

Visualizza allegato 19607

In quel caso, di qualunque dimensioni, altezze, finestre siamo. sempre spazi accessori sono
Si infatti ho specificato che dovranno essere rispettati tutti i parametri urbanistici...
 

Gratis per sempre!

  • > Crea Discussioni e poni quesiti
  • > Trova Consigli e Suggerimenti
  • > Elimina la Pubblicità!
  • > Informarti sulle ultime Novità

Le Ultime Discussioni

Indietro
Top