I letti sono da 160x180, salvo persone di altezza superiore alla media. È una camera da letto, non un living. In Italia il 70% degli spazi sono destinati alla zona notte, dove so dorme.
ma per piacere.
80x160 è la dimensione del materasso; non del letto (che, abbastanza inevitabilmente deve essere contenitore, visto lo spazio di "stoccaggio" di cui certe case moderne dispongono.
io ho un normalissimo letto contenitore. l'ho misurato or ora.. misura 217x180-
ben vero che ha la testiera bombata; ma anche il più scaccione dei letti di mondo convenienza non misura meno di 205 cm.

poi vero anche che non si fanno più figli. ma, se capita, non è che lo puoi cacciare subito in camera (da 9mq, naturalmente!); qualche mese la culla tocca tenerla in camera.
dove la metti?

Quando cambieremo il modo di progettare?
la domanda è "quando i furbetti del mattone la pianteranno di pensare che la gente possa vivere in buchi come polli in batteria?
e dire che l'ondata di fallimenti dei costruttori filibustiere di inizio anni 2000 avrebbe dovuto insegnare qualcosa.
 
Beh, mi auguro che un cambiamento di standard vada nel senso di dare maggiore spazio all’essere umano, non minore.

La lunghezza standard dei materassi è 190
è la larghezza a cambiare: 80 per i singoli, 120 una piazza e mezzo, 140 per quelli alla francese, 160 per il matrimoniale standard, 180 / 200 per il king size (lungo 200)

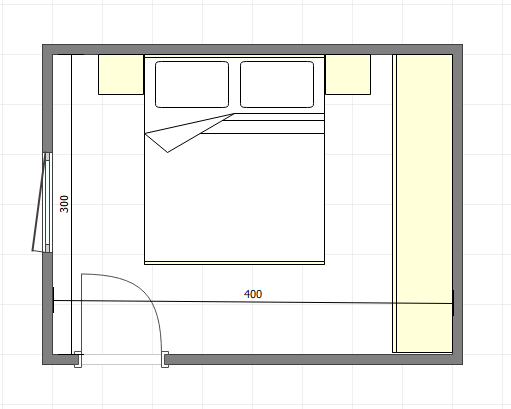
La camera che ho schizzato al messaggio precedente ha un problema

Visualizza allegato 19028

ospizio!
 
Come al solito si finisce al non senso: e ma il mio letto é come quello di Ulisse, e ma ho il comò della nonna, e ma non conosco la differenza tra visitabilità accessibilità e adattabilità. Qui non si sta a discutere se 14mq sono pochi, 12mq anche meno, le case una volta avevano stanze da 20mq, non posso recuperare il comò della nonna e il letto di Ulisse, ho setto che in 12mq, se di forma quadrata o quasi quadrata, ci sta tutto meglio di una stanza 2m x 7m. Leggere, capire, eventualmente rispondere.
 
Visualizza allegato 19024

"in una 3x4 ci si sta benissimo".
eh! come no.
queste sono le vaccate che qualche agente immobiliare prova a sparare agli sprovveduti quando cerca di vendergli la fogna che qualche costruttore costruisce.
Esagerato !!!
Tanto in camera da letto ci vai a dormire...
Meglio avere una zona giorno più grande !
Anni fa ho venduto degli appartamenti duplex che avevano soggiorno con angolo cottura di 16 mq e camere da 14 mq...
Avrei preferito camere più piccole e zona giorno più grande.
 

Gratis per sempre!

  • > Crea Discussioni e poni quesiti
  • > Trova Consigli e Suggerimenti
  • > Elimina la Pubblicità!
  • > Informarti sulle ultime Novità

Discussioni simili a questa...

Le Ultime Discussioni

Indietro
Top